Treviso - Conegliano
Brownfield
Informazioni in evidenza
16.000 mqArea totale
8.000 mqDimensione totale delle sole aree coperte
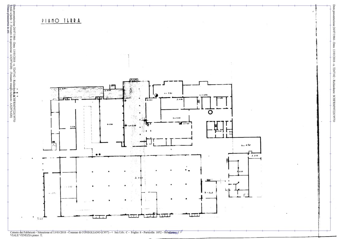
2 Numero edifici che compongono le aree coperte
Posizione geografica
| Regione | Veneto |
|---|---|
| Provincia | Treviso |
| Comune | Conegliano |
Posizione Veneto
Caratteristiche del sito
| Area totale | 16.000 mq |
|---|---|
| Modalità acquisizione | Acquisto , Affitto , Concessione |
| Dimensione totale delle sole aree coperte | 8.000 mq |
| Eventuali coperture residuali | No |
| Numero edifici che compongono le aree coperte | 2 |
| Precedente utilizzo dell’asset industriale | Tessile |
| Area in Zona Economica Speciale | No |
| Area in Zona Logistica Semplificata | No |
| Area in Zona Franca Doganale | No |
| Area di crisi industriale | No |
Infrastrutture e connessioni
| Distanza dalla più vicina autostrada | 7,00 km |
|---|---|
| Distanza dalla più vicina stazione ferroviaria passeggeri | 2,00 km |
| Distanza dal più vicino porto industriale/commerciale | 40,00 km |
| Distanza dal più vicino aeroporto | 45,00 km |
| Distanza dal più vicino terminal ferroviario merci | 40,00 km |





