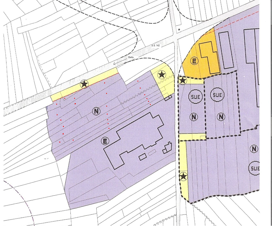
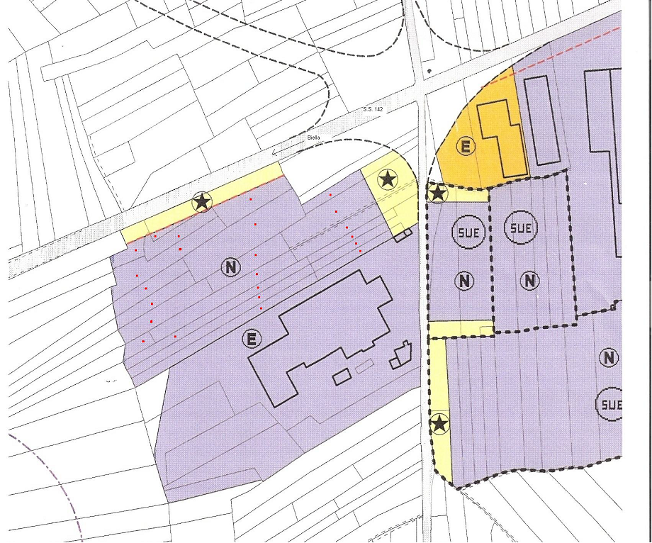
Vercelli - Roasio
Greenfield
Informazioni in evidenza
20.392 mqArea totale
50,00 %Indice di copertura massimo
10 mAltezza massima consentita
Posizione geografica
| Regione | Piemonte |
|---|---|
| Provincia | Vercelli |
| Comune | Roasio |
Posizione Piemonte
Caratteristiche del sito
| Denominazione area industriale | Area produttiva sita a Roasio |
|---|---|
| Area totale | 20.392 mq |
| Indice di copertura massimo | 50,00 % |
| Altezza massima consentita | 10,00 m |
| Modalità acquisizione | Acquisto |
| Area in Zona Economica Speciale | No |
| Area in Zona Logistica Semplificata | No |
| Area in Zona Franca Doganale | No |
| Area di crisi industriale | No |
Infrastrutture e connessioni
| Distanza dalla più vicina autostrada | 13,80 km |
|---|---|
| Distanza dalla più vicina stazione ferroviaria passeggeri | 10,00 km |
| Distanza dal più vicino porto industriale/commerciale | 170,00 km |
| Distanza dal più vicino aeroporto | 90,00 km |
| Distanza dal più vicino terminal ferroviario merci | 50,00 km |


