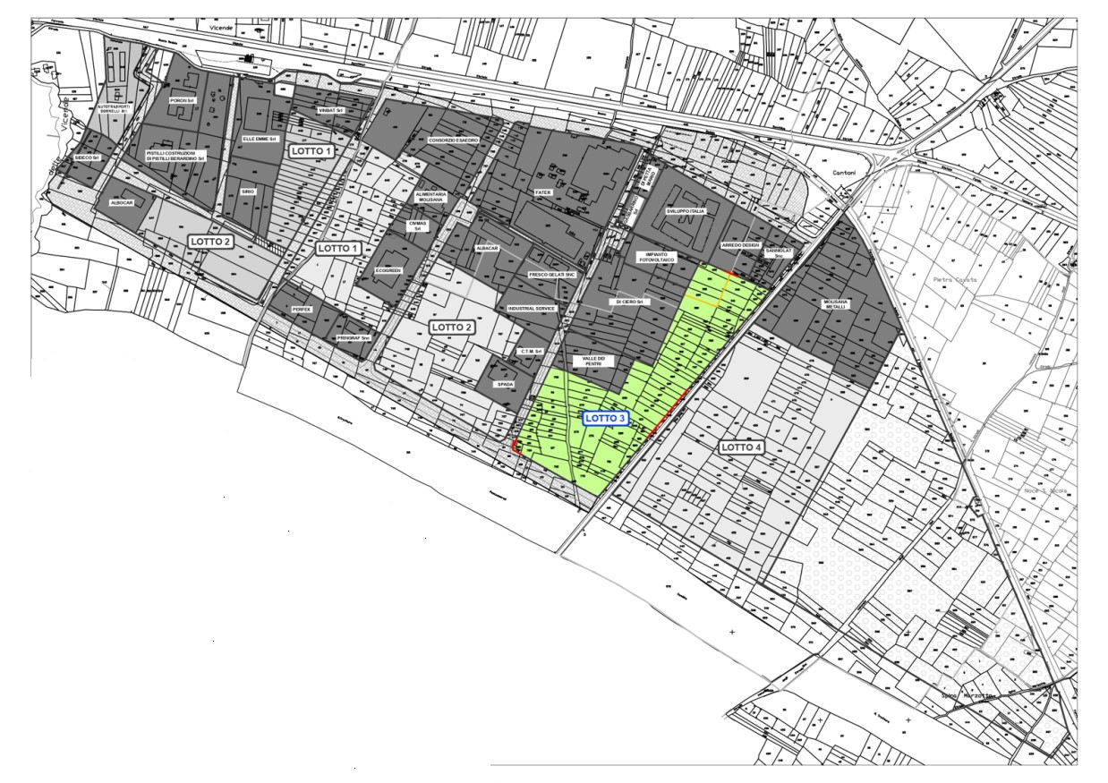
Campobasso - Campochiaro
Greenfield
Highlighted information
94,000 sq.mTotal size
30.00 %Maximum site coverage ratio
12 mMaximum allowed height
Geographic position
| Region | Molise |
|---|---|
| Province | Campobasso |
| Municipality | Campochiaro |
Position Molise
Site features
| Industrial area name | Campobasso-Bojano Industrial Development Consortium |
|---|---|
| Total size | 94,000 sq.m |
| Maximum site coverage ratio | 30.00 % |
| Maximum allowed height | 12.00 m |
| Asset acquisition | Sale of full ownership |
| Area in Special Economic Zone | Yes |
| Area in Simplified Logistics Zone | No |
| Area in Custom Free Zone | No |
| Re-development industrial area | Yes |
Infrastructure and connections
| Distance from the nearest highway | 70.00 km |
|---|---|
| Distance from the nearest passenger train station | 0.50 km |
| Distance from the nearest industrial/commercial port | 80.00 km |
| Distance from the nearest airport | 130.00 km |
| Distance from the nearest freight rail terminal | 120.00 km |


